Tudtátok-e, hogy a Graphisoft® egy magyarországi központú multinacionális szoftverfejlesztő cég, mely építészeti tervező szoftvereket fejleszt építészek, belsőépítészek, városépítészek, táj- és kertépítészek számára?
A mára nemzetközivé terebélyesedett Graphisoft-csoport története 1982-ig nyúlik vissza: Bojár Gábor és társa, Tari István Gábor ugyanis ekkor alapította meg Budapesten a 20 000 Ft kezdőtőkéjű Graphisoft Számítástechnikai Gmk-t.
A cég alapítói alkották meg a GDL (geometriai leíró, definiáló) nyelvet. Erre alapozva 1984-ben fejlesztették ki a világ első, személyi számítógépen futó háromdimenziós építészeti tervező szoftverét, az ArchiCAD-et, amely ma is a cég fő terméke. Ezek piacán mára a világ öt legnagyobb vállalata közé tartozik. Szoftvereit mintegy 80 országban, 25 nyelven, 75 ezer felhasználó alkalmazza.

A piacon sok egyéb hasonló szoftver is megtalálható, de Magyarországon talán ez a program terjedt el leginkább. Komoly, nagy beruházások terveit készítették el segítségével, mint például az új Nemzeti Színházét, a „bálnát” vagy az új Fradi pályáét:

Szűkebb környezetünkben a Csabagyöngyét, az A-B Expó épületét, és a gyulai Várfürdő rekonstrukciós munkáit is ezzel a programmal tervezték.



Néhány érdekes épület képe a világ más tájairól:



Iskolánkban már több mint 15 éve van lehetőség a program megismerésére, a számítógépes épületmodellezés és rajzolás nem is egyszerű folyamatának megtanulására.

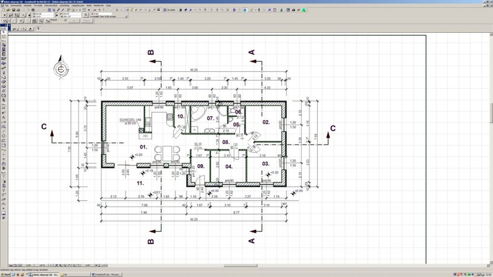
Íme néhány kép az elmúlt évek „terméséből”, tanulóink munkáiból:


